Description
Double-girder overhead bridge crane is a heavy-duty lifting machinery widely used in various heavy industries and manufacturing fields. The double-girder bridge crane is mainly composed of two main beams, two end beams, a trolley and electrical equipment. This type of crane is designed to lift and move heavy items and cargo, with high load capacity and a large working range.The double-girder overhead crane is an efficient and reliable lifting equipment suitable for a variety of industrial occasions. By selecting the appropriate model and configuration, production efficiency can be greatly improved and operational safety ensured.

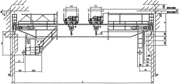
Components of overhead bridge crane
1. Bridge: The bridge is the basic structure of a double-girder bridge crane, which is divided into two main beams and two end beams, generally in the form of a box or truss. The main beam is mainly responsible for carrying the load of the crane, while the end beam plays a stabilizing role to ensure the overall strength of the bridge.

2. Crane: The operating mechanism of the cranet includes motors, brakes, reducers and other components. The main function is to drive the entire crane to move forward and backward along the length of the workshop, usually through separate driving, that is, each set of wheels is driven by a separate motor. This method has the advantages of light weight and easy installation and maintenance.

3. Trolley: The main function of the trolley is lifting, including the trolley frame, lifting mechanism and trolley operating mechanism. The trolley can move left and right along the track on the main beam of the bridge, and its movement is controlled by the motor through the reducer and brake. This design of the trolley allows it to move precisely in the transverse direction of the bridge while lifting or lowering the load.

4. Control room: The control room is where the operator controls the crane. There are different types to suit different working environments. Various control devices are installed inside the control room, such as large and small car moving mechanism control devices, lifting mechanism control devices and protection devices. These devices ensure that the operator can easily control all movements of the crane and ensure safety during use.

5. Sketch:

Application of overhead bridge crane
1. Industrial field:
In the industrial field, the application of double-girder bridge cranes is very important. It is mainly used for lifting heavy items, such as steel, large machinery and equipment, etc. Its strong carrying capacity and stable operating performance make it an indispensable lifting equipment in these industries, greatly improving production efficiency and safety.
2. Construction industry:
Double-girder overhead cranes also play an important role. It is widely used for lifting construction materials, such as cement, steel bars, wall panels, etc. Due to its stable structure, it can accurately position materials to the construction area, greatly speeding up the construction progress of construction projects and reducing labor input.
3. Port terminals:
In ports, double-girder bridge cranes are used to load and unload containers, bulk materials, and other types of cargo. Its powerful load capacity and flexible operation methods significantly improve the port’s logistics processing speed and greatly enhance the port’s throughput capacity.
4. Energy industry:
For example, in the construction of hydropower stations, double-girder bridge cranes are used to transport and assemble heavy hydropower equipment, such as turbines, generators, etc. Its high load capacity and precise control ensure accurate installation and commissioning of these important equipment.
5. Special environments:
For example, in steel plants or boiler workshops, double-girder bFor example, in steel plants oFor example, in steel plants or boiler workshops, double-girder bridge cranes can adapt to high-temperature environments and continue to carry out heavy material handling and production tasks. Its high-temperature resistant design ensures that the device can operate normally even in extreme temperatures.

Main technical data of overhead bridge crane

Advantages of overhead bridge crane
- Strong load-bearing capacity: The double-girder bridge crane is composed of two main beams and two end beams. This structure gives it a large load-bearing capacity. Its light weight but large load allow it to undertake major lifting tasks in industrial applications, while reducing the burden on the factory structure.
- Strong wind resistance and stability: Due to its unique honeycomb beam design and strong steel pin connections, the double-girder overhead crane has strong wind resistance and stability. This feature enables it to withstand strong natural wind when operating outdoors, ensuring safe operation.
- Easy to assemble and transport: The assembly time of the double-girder bridge crane is shorter, and each component can be disassembled into single pieces during transportation, which greatly facilitates the handling and installation process. This design feature is particularly useful for equipment that needs to be moved between multiple job sites.
- Flexible operation control: Equipped with advanced electrical equipment and control systems, these systems ensure that the crane can move accurately in three dimensions for precise handling and loading and unloading of goods.
Crane production procedure

Workshop view
The company has installed an intelligent equipment management platform, and has installed 310 sets (sets) of handling and welding robots. After the completion of the plan, there will be more than 500 sets (sets), and the equipment networking rate will reach 95%. 32 welding lines have been put into use, 50 are planned to be installed, and the automation rate of the entire product line has reached.














