Description
Double-girder gantry crane is a kind of lifting equipment with strong load-bearing capacity and large span. The structural characteristics of double-girder gantry cranes make them widely used in various industrial scenarios. This type of crane adopts a double main girder design and has very high stability and load-bearing capacity. Its main beam generally adopts a box-shaped beam structure, which makes it highly safe and rigid, and is suitable for lifting operations of large and ultra-large tonnage. Compared with single-girder gantry cranes, double-girder gantry cranes can provide a wider operating range and higher site utilization. The main girder of a double-girder gantry crane can extend beyond the outriggers on one or both sides to form a cantilever, thereby expanding the operating range. This design not only improves the crane’s flexibility in use, but also effectively covers a wider operating area.
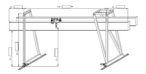
Components of gantry crane with electric hoist
1. Main beam:
The main beam is the main load-bearing component of the crane. It is usually made of steel plates welded into a box-type or truss-type structure, which bears all loads and transmits them to the outriggers and the ground.

2. Lifting mechanism:
The lifting mechanism includes motors, reducers, drums, wire ropes, hooks and other components to realize the lifting movement of goods.

3. Cab:
The cab is the workplace where the operator controls the crane. It is equipped with control levers or buttons for controlling various movements of the crane.

4. Hoist:
Electric hoist is driven by an electric motor and can lift goods from the ground or a certain position to a specified height, then move them horizontally, and finally place the goods at the target location. This cyclic and intermittent movement method enables double-girder gantry cranes to efficiently load, unload, and transport cargo in factories, warehouses, docks, and other places.

5. Sketch:

Application of gantry crane with electric hoist
1. Port terminal: In port terminals, double-girder gantry cranes are mainly used for loading and unloading containers, bulk cargo, and handling the transshipment of various commodities. These cranes can carry heavy loads and adapt to long-term, high-efficiency operations, greatly improving logistics efficiency and port throughput.
2. Construction sites: At construction sites, double-girder gantry cranes are used to hoist building materials such as steel bars, concrete components, etc., and to assist in the installation of large building structures. Its ability to operate in tight spaces makes it ideal for use on dense construction sites and improves the efficiency of construction projects.
3. Hydropower station: In hydropower stations, double-girder gantry cranes are mainly used to open and close large gates, carry generator components weighing hundreds of tons, etc. This kind of crane usually needs to have a large lifting height and lifting capacity to adapt to the needs of special working environments.
4. Shipyard: In shipyards, double-girder gantry cranes are widely used due to the need to lift large hull components and equipment. They usually have high span and lifting capacity, which can meet the demand for high-precision lifting of large components during ship construction.

Advantages of gantry crane with electric hoist
Advantages of lifting height: Due to its design advantages, the installation height of the double-girder gantry crane is not limited by the indoor site. It can effectively increase the lifting height to meet the shipping needs of specific occasions.
Large load-bearing capacity: With a double main beam design, its load-bearing capacity far exceeds that of a single beam design, allowing the lifting capacity to reach 20T-300T, which is suitable for heavy lifting operations, thus greatly improving the production efficiency of the enterprise.
Strong structural stability: The double-girder design can disperse the load between the two girders, effectively improving the stability and safety of the crane. The double-girder gantry crane has a stable structure and can withstand larger spans, making it suitable for larger-scale workplaces.
Wide range of applications: Double-girder gantry cranes are not only suitable for handling various materials, but also suitable for various working environments such as ports, construction sites, and warehouses. Able to handle a wide range of lifting needs from small parts to large equipment, it is highly adaptable.

Main technical data

Crane production procedure
Demand analysis: Understand the specific needs of customers, including the working environment, lifting capacity, span and other specific requirements of the crane. Formulate technical specifications according to the needs, including lifting height, load capacity, operating speed, etc.
Design: Carry out structural design of single-beam gantry crane, including main beam, outriggers, end beams, trolley, operating mechanism and other parts. Draw detailed design drawings and engineering drawings, including the size, material and assembly method of each component.
Material procurement: Select suitable materials such as steel, aluminum alloy, etc. according to design requirements to ensure the strength and durability of the materials.
Parts manufacturing: Cut steel into required sizes, and perform welding, drilling, processing and other operations to manufacture main beams and end beams. Weld each steel component to ensure that the welding quality meets the standards. Manufacture various components of the trolley operating mechanism, such as wheels, drive devices, brackets, etc. Assemble the components of the trolley to ensure that it can run smoothly. Produce and assemble lifting motors, reducers, drums, hooks and other components. Assemble the various components of the lifting system to ensure that it can work properly.
Assembly: Connect and weld the main beam to the legs to ensure stability and strength. Install the end beam, fix and adjust it. Install the trolley on the main beam to ensure smooth operation on the main beam. Install the operating mechanism of the trolley and the trolley to ensure normal operation. Install the hoist and related equipment on the main beam, connect the cables and debug. Install electrical components such as motors, control cabinets, switches, sensors, limit switches, etc.
Testing and adjustment: Check the installation and connection of all components and make necessary adjustments. Perform a no-load operation test to check whether the various functions of the crane are normal and ensure that there are no mechanical failures. Perform a test under the specified load to check the performance and stability of the lifting system, operating mechanism and electrical system. Test all safety devices, such as limit switches, overload protection devices, sound and light alarm systems, etc., to ensure their normal function.

Global Market

Workshop view
The company has installed an intelligent equipment management platform, and has installed 310 sets (sets) of handling and welding robots. After the completion of the plan, there will be more than 500 sets (sets), and the equipment networking rate will reach 95%. 32 welding lines have been put into use, 50 are planned to be installed, and the automation rate of the entire product line has reached.














